English
Nieuw in verhuur:Bergerstraat 66B, 6226 BD Maastricht - Foto
Nieuw in verhuur
+2

Bergerstraat 66B 6226 BD Maastricht € 815,- /mnd

  • Appartement
  • 2 kamers
  • 1 slaapkamer(s)
  • 1 badkamer
  • Bouwjaar 1905
  • 50 m² gebruiksoppervlakte
  • Gestoffeerd
  • C Energielabel C

Beschrijving

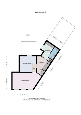
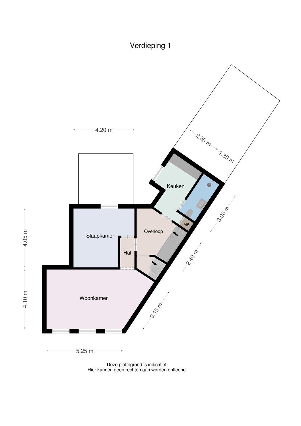
Net 1 slaapkamer appartement in de wijk Scharn, Maastricht.

Het appartement is gelegen op de eerste verdieping. De woonkamer welke gelegen is aan de voorzijde van het pand is ruim van opzet en geniet door de 3 grote raampartijen van veel lichtinval.
De slaapkamer van respectievelijk 12 m2 is aan de achterzijde gelegen.
Let wel, de keuken en de badkamer is uitsluitend te bereiken via de algemene overloop welke je uitsluitend deelt met de bovenburen.
De gesloten keuken is voorzien van 4 pits fornuis, afzuigkap en een losse koelkast. Vanuit de keuken is eveneens de badkamer te bereiken welke is voorzien van douche, wastafel en toilet.

Bijzonderheden:
- Er is gezamenlijke wasmachine in het pand aanwezig.
- De fiets kan worden gestald in de gezamenlijke fietsenberging aan de achterzijde van het pand.
- De keuken en de badkamer is uitsluitend te bereiken via de algemene overloop welke je uitsluitend deelt met de bovenburen.

Huurgegevens:
- De huurprijs incl. voorschot G/W/E, tv en internet bedraagt € 975,- per maand.
- Waarborgsom bedraagt € 1630,-

Wij werken conform het toewijzigingsprotocol van Pararius. Meer informatie vind je via deze link: https://www.pararius.nl/info/selectieprocedure-huurder

Kaart

Kenmerken

Overdracht

Referentienummer
02741
Huurprijs
€ 815,- per maand
Borg
€ 1.630,-
Servicekosten
€ 20,- per maand
Elektra
€ 30,- per maand
Verwarming
€ 65,- per maand
Water
€ 15,- per maand
Inrichting
Ja
Inrichting
Gestoffeerd
Status
Nieuw in verhuur
Aanvaarding
Direct
Aangeboden sinds
Woensdag 1 april 2026

Bouw

Type object
Appartement, bovenwoning
Woonlaag
2e woonlaag
Soort bouw
Bestaande bouw
Bouwperiode
1905
Isolatievormen
Dubbel glas

Oppervlaktes en inhoud

Woonoppervlakte
50 m²
Inhoud
150 m³

Indeling

Aantal bouwlagen
1
Aantal kamers
2 (waarvan 1 slaapkamer)
Aantal badkamers
1

Energieverbruik

Energielabel
C

Uitrusting

Badkamervoorzieningen
Douche
Toilet
Wastafel

Media

Plattegronden

Bekeken woningen

Recent bekeken

Bekijk ons volledige aanbod

Wilt u uw woning verkopen / verhuren?

Neem contact op voor een gratis adviesgesprek

Contact opnemen