English
Nieuw in verhuur:Dominicushof 1A, 6042 NG Roermond - Foto
Nieuw in verhuur
+18

Dominicushof 1A 6042 NG Roermond € 1.450,- /mnd

  • Appartement
  • 3 kamers
  • 2 slaapkamers
  • 1 badkamer
  • Bouwjaar 2025
  • 90 m² gebruiksoppervlakte
  • A+++ Energielabel A+++

Beschrijving

Modern en duurzaam, instapklaar nieuwbouwappartement in hartje Maasniel, Roermond (90 m2) met privé tuin van maar liefst 236 m² met Wadi (energielabel A+++)

In het hart van Maasniel staat dit uniek, kleinschalig appartementencomplex met slechts 9 moderne woningen. Hier woont u rustig tussen het groen, terwijl u toch op loopafstand van het centrum en alle voorzieningen verblijft. Het complex ligt direct achter de basisschool en het recent gerenoveerde klooster, op een bijzondere locatie die rust, comfort en bereikbaarheid combineert.
Het complex is voorzien van een lift, een gemeenschappelijke parkeerplaats aan de voorzijde en een video-intercomsysteem voor extra gemak en veiligheid.

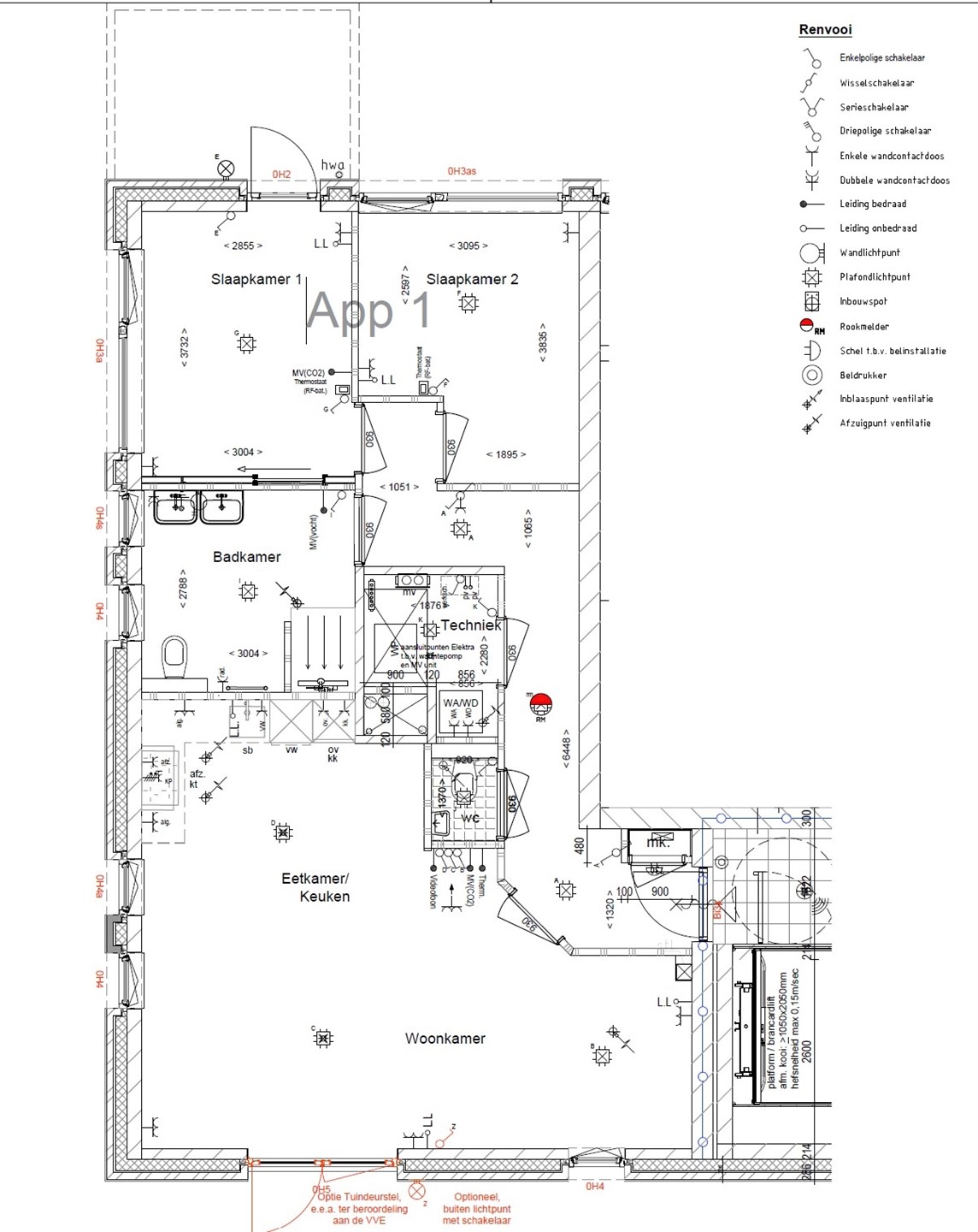
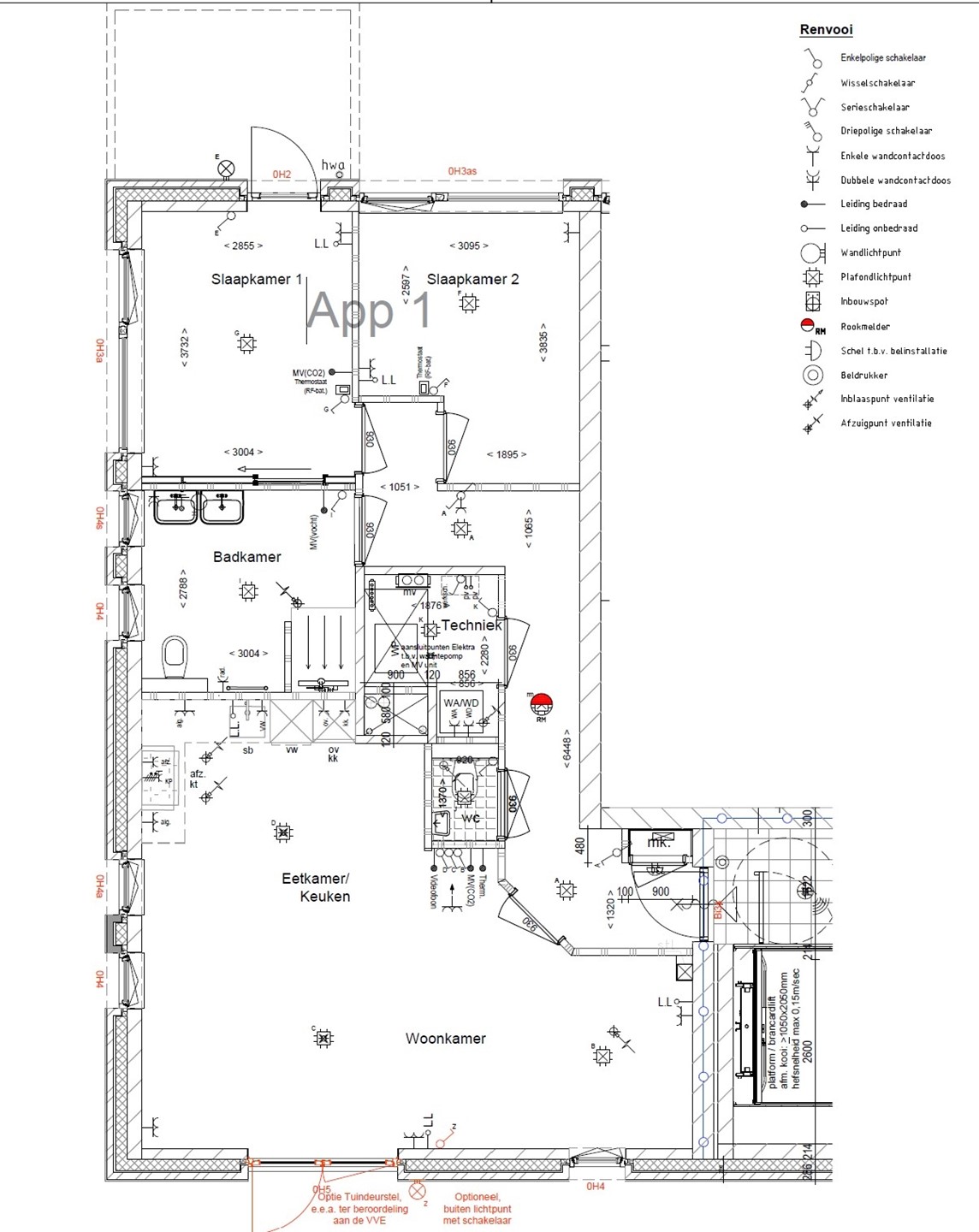
Dit gelijkvloerse appartement is op de begane grond gelegen en heeft een woonoppervlakte van ca. 90 m² (excl. berging in het souterrain).

Indeling:
Bij binnenkomst staat men in de hal die toegang biedt tot alle overige vertrekken. Het appartement beschikt over een lichte woonkamer met open keuken voorzien van een luxe installatie met kookeiland en inbouwapparatuur. Twee comfortabele slaapkamers, waarvan een directe toegang biedt tot de ruime, volledig betegelde badkamer met inloopdouche, dubbele wastafel meubel en tweede toilet. Verder zijn er een separaat gastentoilet met fonteintje en een interne bergruimte waar zich de witgoed aansluitingen bevinden. Uniek aan dit appartement is de royale tuin met wadi van maar liefst 236 m². Tevens is het volledige appartement voorzien van een nieuwe laminaatvloer en alles muren volledig nieuw gewit.
In het souterrain bevindt zich nog een separate berging van circa 6m2.

Bijzonderheden:
- De huurder dient zelf zorg te dragen voor inrichting en afscheiding van de tuin

Huurgegevens:
- De huurprijs inclusief servicekosten, exclusief elektra en water bedraagt € 1550,- per maand
- De waarborgsom bedraagt eenmalig € 2900,-
- Woonoppervlakte: ca. 90 m²
- Tuin: 236 m² met wadi
- Energielabel: A+++
- Video-intercomsysteem
- Moderne nieuwbouw, volledig geïsoleerd en energiezuinig

Wij werken conform het toewijzigingsprotocol van Pararius. Meer informatie vind je via deze link: https://tinyurl.com/59s3pdsc

Kaart

Kenmerken

Overdracht

Referentienummer
02725
Huurprijs
€ 1.450,- per maand (geïndexeerd)
Borg
€ 2.900,-
Servicekosten
€ 100,- per maand
Status
Nieuw in verhuur
Aanvaarding
Direct
Aangeboden sinds
Vrijdag 6 maart 2026

Bouw

Type object
Appartement, benedenwoning
Woonlaag
1e woonlaag
Soort bouw
Bestaande bouw
Toegankelijkheid
Mindervaliden
Senioren
Bouwperiode
2025

Oppervlaktes en inhoud

Woonoppervlakte
90 m²
Inhoud
250 m³

Indeling

Aantal bouwlagen
1
Aantal kamers
3 (waarvan 2 slaapkamers)
Aantal badkamers
1 (en 1 apart toilet)

Energieverbruik

Energielabel
A+++

Media

Video

Bekeken woningen

Recent bekeken

Bekijk ons volledige aanbod

Wilt u uw woning verkopen / verhuren?

Neem contact op voor een gratis adviesgesprek

Contact opnemen