English
+67

Beekstraat 58 6231 LH Meerssen € 575.000,- k.k.

  • Belegging
  • Bouwjaar 1934
  • 98 m² perceeloppervlakte
  • Gestoffeerd
  • C Energielabel C

Beschrijving

Te koop: Beleggingsobject – verhuurobject, bestaande uit een 3 tal appartementen en een winkelruimte op de begane grond (allen solide en goed verhuurd) gelegen in het centrum van Meerssen.

Dit centraal gelegen gemeentelijk monument, is gelegen aan de Beekstraat 58 in het centrum van Meerssen. Op dit moment zijn de winkelruimte als ook de 3 appartementen allen verhuurd.

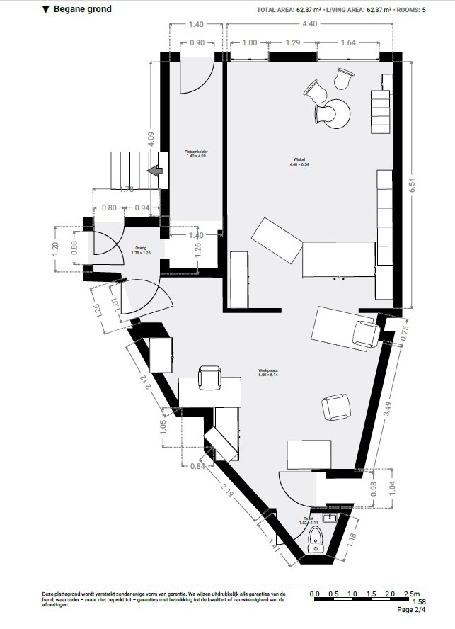
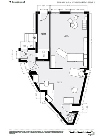
De winkelruimte op de begane grond heeft een winkel oppervlakte van circa 60m2 en is daarnaast volledig onderkelderd.
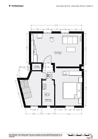
De 3 appartementen zijn te bereiken via een gezamenlijke entree en trappenhuis naast de winkel. De appartementen zijn qua indeling en oppervlakte gelijk aan elkaar. Allen voorzien van 1 slaapkamer welke aan de achterzijde zijn gesitueerd. De keukens zijn allen voorzien van een kookplaat, afzuigkap, oven en inbouwkoelkast.
Alle appartementen hebben hun eigen elektra aansluiting. Stookkosten en water loopt voor de appartementen gezamenlijk.
De winkelruimte is volledig zelfstandig m.b.t de energie.

Bijgevoegde informatie bevat de basisinformatie van het object en is uitsluitend bedoeld om potentiële kopers te helpen bij de keuze om het object al dan niet nader te onderzoeken.

Basis informatie:
Het pand is verkeerd in een eenvoudige staat van onderhoud.
Energielabel winkel (label C) 58a( label D), 58b(label C), 58c(label E).
Uitsluitend bouwkundig gesplitst.
Separate energie labels en puntenberekeningen voorhanden.
Huuropbrengst excl. stookkosten en water bedraagt € 32.500,- per jaar.
Geen betaalachterstanden.

Samenvattend vormt dit beleggingsobject met een solide huuropbrengst, gunstige locatie en hoge verhuurbaarheid een waardevolle investering.

Disclaimer:
Deze presentatie is zo zorgvuldig mogelijk opgesteld, wijzigingen zijn voorbehouden, aangegeven maten zijn bij benadering. Aan deze presentatie kunnen dan ook geen rechten worden ontleend.

Schriftelijkheidsvereiste:
Ter bescherming van de belangen van zowel koper als verkoper, wordt uitdrukkelijk gesteld dat een koopovereenkomst met betrekking tot deze onroerende zaak eerst dan tot stand komt nadat koper en verkoper de koopovereenkomst hebben getekend.

Koopakte:
De koopakte wordt opgesteld conform het model van de NVM.

Ontbinding:
De termijn die wordt opgenomen voor eventuele (overeengekomen) ontbindende voorwaarden (bijv. financieringsvoorbehoud) is in de regel 4 tot 6 weken na het sluiten van de mondelinge wilsovereenkomst.

Waarborgsom:
De waarborgsom/bankgarantie is 10% van de koopsom. De koper dient deze binnen 2 weken ná het vervallen van de ontbindende voorwaarden bij de desbetreffende notaris te deponeren.

Onderzoeksplicht van de koper:
Koper is te allen tijde gerechtigd voor eigen rekening een bouwkundige keuring te laten verrichten dan wel andere adviseurs te raadplegen teneinde een goed inzicht te verkrijgen over de staat van onderhoud.

Kaart

Kenmerken

Overdracht

Referentienummer
02562
Vraagprijs
€ 575.000,- k.k.
Inrichting
Ja
Inrichting
Gestoffeerd
Aanvaarding
In overleg
Aangeboden sinds
Woensdag 7 mei 2025
Laatste wijziging
Maandag 23 februari 2026

Bouw

Type object
Belegging, Woninginvesteringen
Soort bouw
Bestaande bouw
Bouwperiode
1934

Oppervlaktes en inhoud

Perceeloppervlakte
98 m²

Locatie

Ligging
In centrum
Lokale voorzieningen
Geldautomaat binnen 500 meter
Restaurant binnen 500 meter
Winkel binnen 500 meter
Supermarkt binnen 500 meter
Bereikbaarheid
Bushalte binnen 500 meter
Treinstation binnen 500 meter
Afrit van de snelweg op 1000 meter tot 1500 meter

Energieverbruik

Energielabel
C

Kadastrale gegevens

Kadastrale aanduiding
Meerssen E 832
Perceeloppervlakte
98 m²
Omvang
Geheel perceel
Eigendomsituatie
Gebruik en bewoning

Media

Video

Virtuele tour

Plattegronden

Bekeken woningen

Recent bekeken

Bekijk ons volledige aanbod

Wilt u uw woning verkopen / verhuren?

Neem contact op voor een gratis adviesgesprek

Contact opnemen