English
Nieuw in verhuur:Beekstraat 58A, 6231 LH Meerssen - Foto
Nieuw in verhuur
+18

Beekstraat 58A 6231 LH Meerssen € 720,- /mnd

  • Appartement
  • 2 kamers
  • 1 slaapkamer(s)
  • 1 badkamer
  • Bouwjaar 1934
  • 98 m² perceeloppervlakte
  • 135 m² gebruiksoppervlakte
  • C Energielabel C

Beschrijving

In het centrum van Meerssen gelegen, in een gemeentelijk monument, eenvoudig 1 slaapkamer appartement.

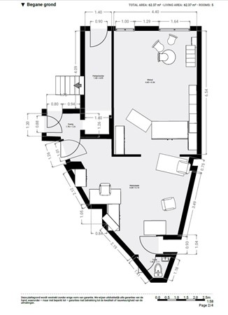
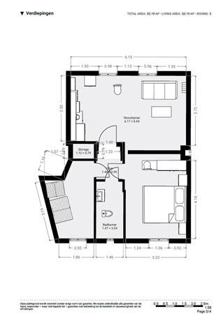
Het appartement is op de eerste verdieping gelegen en beschikt over een eenvoudig, doch net keukenblok met 4 pits fornuis, afzuigkap, oven, koelkast en de aansluiting voor de wasmachine. De open keuken sluit aan op de sfeervolle woonkamer. Verder beschikt het appartement over 1 slaapkamer en een badkamer met douche, wastafel en toilet. Het gehele appartement is voorzien van laminaatvloer.

Dit appartement bevindt zich in het centrum van Meerssen. Openbaar vervoer, het park, winkels, restaurants etc. bevinden zich op loopafstand. Maastricht centrum is 7 km en makkelijk bereikbaar met de fiets (15min). De snelwegen A2 en A79 zijn tevens eenvoudig en snel te bereiken.

Huurgegevens:
- De huurprijs incl. gas, water en excl. elektra bedraagt € 875,- per maand.
- Borg bedraagt € 1000,-
- Huurtoeslag is mogelijk!
- Huisdieren zijn hier helaas niet toegestaan.
- Huurtermijn bedraagt minimaal 24 maanden!

Wij werken conform het toewijzigingsprotocol van Pararius. Meer informatie vind je via deze link: https://tinyurl.com/59s3pdsc

Kaart

Kenmerken

Overdracht

Referentienummer
02658
Huurprijs
€ 720,- per maand
Borg
€ 1.000,-
Servicekosten
€ 155,- per maand
Status
Nieuw in verhuur
Aanvaarding
Per zaterdag 1 november 2025
Aangeboden sinds
Woensdag 1 oktober 2025

Bouw

Type object
Appartement, bovenwoning
Woonlaag
1e woonlaag
Soort bouw
Bestaande bouw
Bouwperiode
1934
Isolatievormen
Dubbel glas

Oppervlaktes en inhoud

Perceeloppervlakte
98 m²
Woonoppervlakte
135 m²
Inhoud
695 m³

Indeling

Aantal bouwlagen
2
Aantal kamers
2 (waarvan 1 slaapkamer)
Aantal badkamers
1

Locatie

Ligging
In centrum
Lokale voorzieningen
Geldautomaat binnen 500 meter
Restaurant binnen 500 meter
Winkel binnen 500 meter
Supermarkt binnen 500 meter
Bereikbaarheid
Bushalte binnen 500 meter
Treinstation binnen 500 meter
Afrit van de snelweg op 1000 meter tot 1500 meter

Energieverbruik

Energielabel
C

CV ketel

Warmtebron
Gas
Eigendom
Eigendom

Uitrusting

Warm water
CV-ketel
Verwarmingssysteem
Centrale verwarming

Media

Plattegronden

Bekeken woningen

Recent bekeken

Bekijk ons volledige aanbod

Wilt u uw woning verkopen / verhuren?

Neem contact op voor een gratis adviesgesprek

Contact opnemen